Residenziale Vendite
VenditaTorna alla lista
Trilocale ristrutturato Via Birago
Dettagli
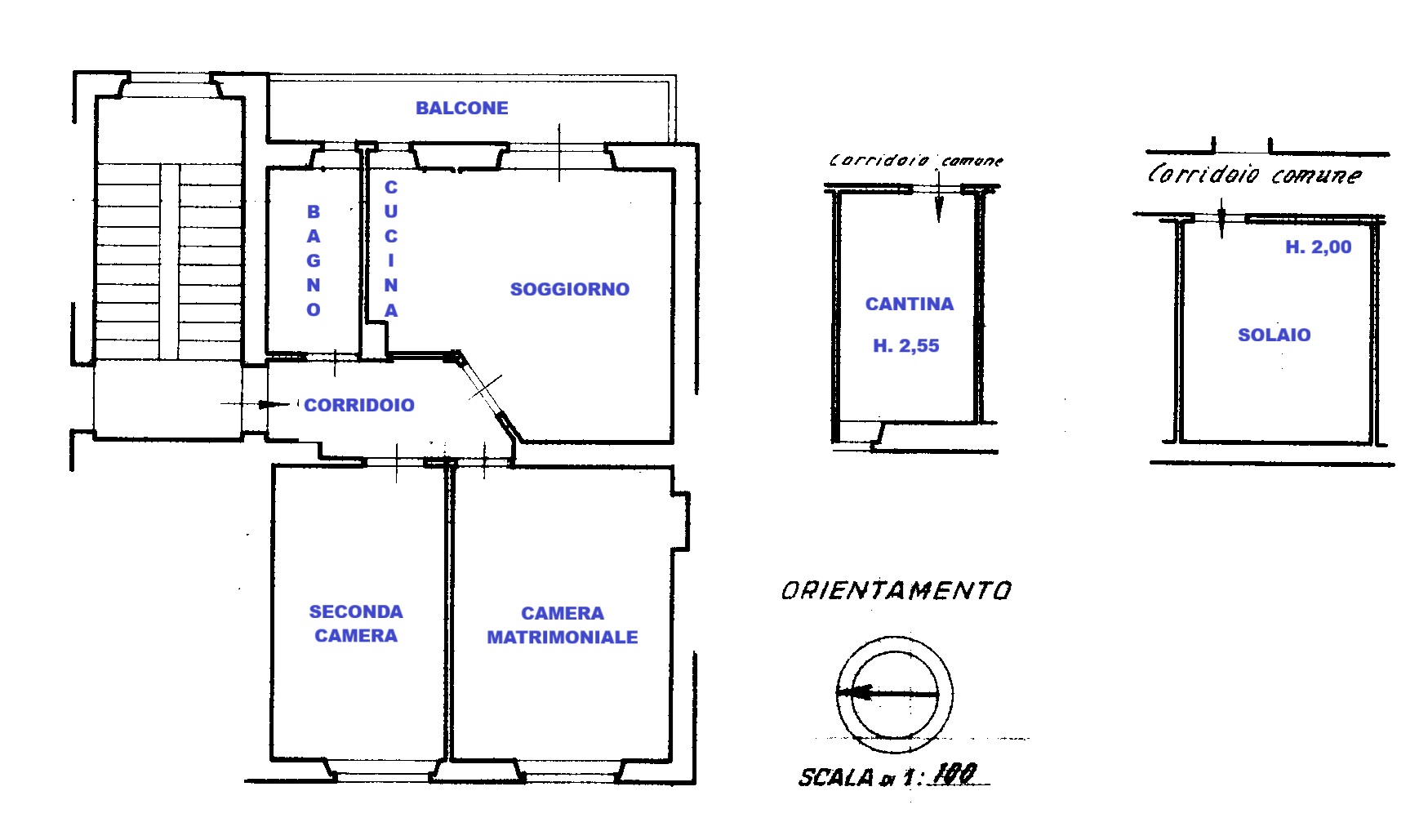
In stabile degli anni '40, proponiamo ottimo trilocale ristrutturato composto da: ampio ingresso nel corridoio, soggiorno con cucina a vista arredata e affaccio sul cortile interno sul grande balcone, camera matrimoniale, seconda camera, bagno finestrato, ripostiglio in quota, cantina e solaio.
L'immobile ha una doppia esposizione sul cortile interno e sulla via a senso unico e poco transitata.
Ristrutturato circa 10 anni fa da architetto, serramenti in PVC con zanzariere, climatizzato.
Zona servitissima di negozi di prima necessità, mezzi di trasporto sotto casa, a pochi passi dalla nuova MM4 BLU, è una zona residenziale tranquilla, con edifici storici ben conservati e spazi verdi.
Se avete bisogno di un finanziamento, con Noi lo potete ottenere grazie alla Nostra convenzione con Medio Fimaa (associazione di categoria e Camera di Commercio): soluzioni su misura, oltre 110 prodotti, 10 banche partner, condizioni agevolate, gestione delle pratiche mutuo per acquisto, ristrutturazione, sostituzione, surroga e liquidità. Consulenza professionale presso il Ns. ufficio.
...

